home
recent
interiors
kitchens and bathrooms
exteriors
commercial
millwork
accessibility
about
what to expect
contact
home
recent
interiors
kitchens and bathrooms
exteriors
commercial
millwork
accessibility
about
what to expect
contact
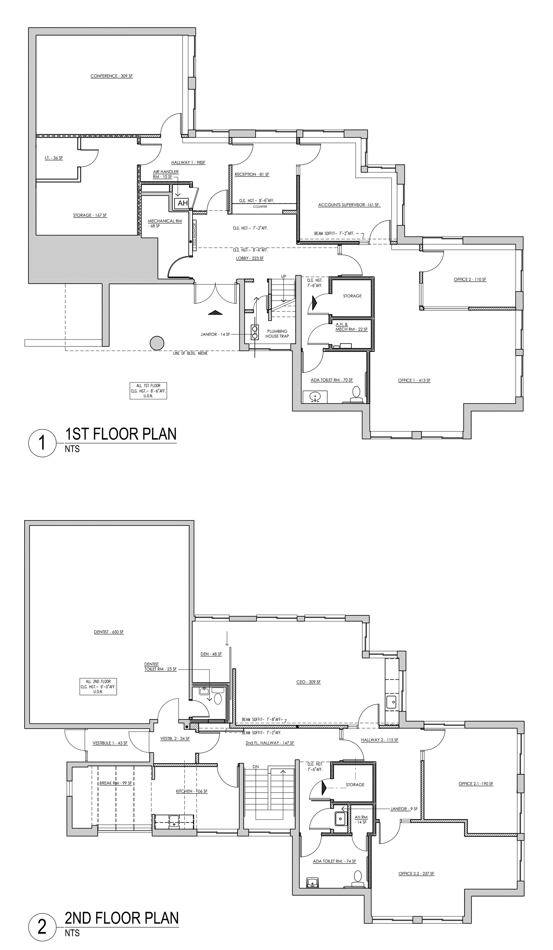
academic federal credit union
briarcliff manor, ny
↑
Back to Top