home
  • recent
  • interiors
  • kitchens and bathrooms
  • exteriors
  • commercial
  • millwork
accessibility
about
what to expect
contact
Mitchell Koch Architects
home
  • recent
  • interiors
  • kitchens and bathrooms
  • exteriors
  • commercial
  • millwork
accessibility
about
what to expect
contact

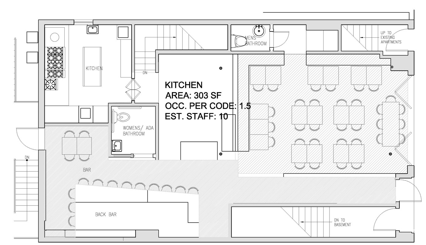
the parlor

dobbs ferry, ny

↑Back to Top
All works © Mitchell Koch Architects 2016.